How is a washing machine indicated on an apartment plan?
Symbols on construction drawings sometimes raise questions among uninitiated clients. When looking at a house plan, people can't figure out which drawing represents what. When studying a floor plan, they don't understand where the main furniture and appliances will be located.
We'll look at how to indicate a washing machine on an apartment plan. We'll also explain what other furnishings look like on construction drawings. This information will be useful for those planning to build a house or renovate an apartment.
Washing machine icon on the plan
During the construction or renovation phase of a home, clients have to review designers' sketches and make adjustments as needed. The drawings schematically show where furniture, plumbing fixtures, and appliances will be installed in the apartment. To quickly navigate the layout, clients need to understand what each symbol represents.
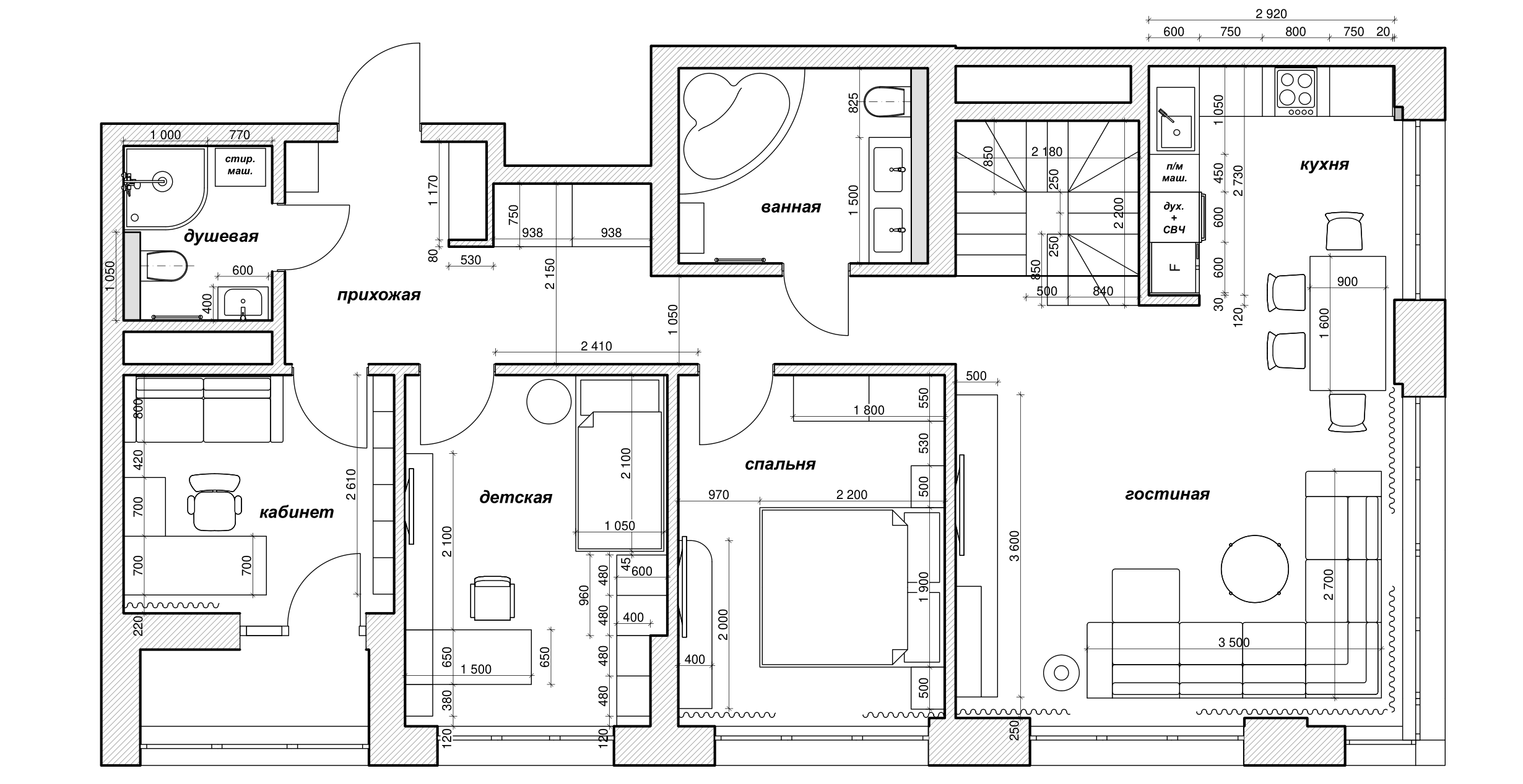
On the apartment plan, the automatic washing machine is depicted as a square in which a circle with a bold dot in the middle is inscribed.
In modern apartments, washing machines are often installed in the most unexpected places, especially in small spaces. The first place to look for the appropriate symbol is in the bathroom; if not there, look in the kitchen, hallway, or pantry.
In a cottage, washing machines are typically located in the laundry room. The symbol can also be found in the kitchen, bathroom, hallway, walk-in closet, and basement. In the most ambitious designs, a machine can even be found in the living room.
The washing machine designation is standard. A square containing a circle with a dot in the center is found not only in construction drawings, but also in washing machine instructions and on clothing labels. Therefore, once you remember the symbol once, it will be impossible to confuse it with something else.
What do the other elements look like?
When looking at a construction plan, you can see many incomprehensible symbols – circles, sticks, various rectangles. Each designation hides some piece of furniture behind it. Some drawings depict heating system components, others furniture, and still others household appliances. Let's discuss the most common and basic images.
- A rectangle without a left side border. This represents a dining table. Depending on its size, it can seat 4 or 6 people.
- Circle. This symbolizes a standard-sized round dining table (110 cm in diameter).
- A rectangle with a small dot in the upper right corner is a desk.
- A long rectangle with defined borders on the sides and top. The design vaguely resembles a sofa—it is this piece of furniture that conceals the symbol.
- A square with outlined edges represents a chair. This symbol can be found in the living room, bedroom, children's room, balcony, etc.

- A trapezoid, widening toward the top. This is a symbol of a chair. This indicates the placement of both dining and desk chairs.
- A rectangle with a diagonal line from the upper left corner to the lower right. This is how a bed is depicted. A similar drawing, but smaller, indicates the location of a child's crib.
- An empty rectangle with all four borders marked. This is the symbol for a double-door wardrobe.
- A square with a horizontal line drawn at the bottom. This is how the plan shows a small single-door cabinet, measuring 60 x 70 cm.
- A horizontal line with many perpendicular strokes. This is how a clothes hanger is drawn in drawings.
- An elongated rectangle with keys drawn underneath. This is how a piano or synthesizer stands out.
- This symbol can be found in the kitchen area. This drawing indicates the location of the sink.
- This symbol indicates a metal kitchen stove.
Below, we'll explain the designations of some of the appliances found in a laundry room. Typically, these include washers, dryers, and wringers.
- A square with a circle and a dot inside is a symbol of an automatic washing machine.
- A square with a small circle drawn at the top and a bold dot at the bottom. This represents the location of the dryer.
The easiest way to understand the symbols is in the bathroom and toilet. All the drawings there very realistically depict reality.
- Built-in bathtub with straight sides. Dimensions may vary; specific dimensions are specified in the apartment plan.
- Drawing showing the location of the wash basin with hot and cold water.
- This symbol indicates a bidet.
- Standard toilet designation.
- A square with a smaller rectangle and two small circles inside symbolizes a shower tray.
- This symbol denotes a urinal. It's rarely found in apartment plans, but quite common in cottage plans.
When studying a project for an apartment building, you may come across images of an elevator, a garbage chute, a garbage disposal shaft, and a ventilation system.
The house plan also schematically shows where the elements responsible for heating the room are located.
- The heating pipe is indicated by a long, thin rectangle.
- A rectangle with many vertical straight lines inside indicates the location of heating radiators. These are typically placed under windows.
- The serpentine is depicted as several horizontal lines connected by lateral borders.
- A heating boiler is indicated by an empty square with one or two vertical lines drawn below it (depending on the type of device).
When analyzing a builder's plan, it's important for clients to understand the layout of key furniture, appliances, and utilities. Understanding all the details allows for timely adjustments to the house or apartment plan. This way, no questions about the furnishings will arise once the renovation is complete.
Interesting:
Readers' comments
Headings
Washing machine repair
For buyers
For users
Dishwasher







Add a comment